참여/알림마당
질의응답
- 저속한 표현, 특정인 비방, 상업적 내용, 불법선거 등은 예고 없이 삭제될 수 있습니다.
- 주민번호 등 개인정보는 사생활 침해나 부당하게 이용될 수 있으니 주의하시기 바랍니다.
정보통신망 이용 촉진 및 정보보호등에 관한 법률 제44조
제목
방염대상건물내 방염처리 할 품목 확인바랍니다.
작성자
김동우
등록일
2010-11-01
조회수
2648
내용
과중한 업무에 수고 많으십니다.
다중이용업소특별법의 내용 중
“제3조(실내장식물) 법 제2조 제3호에서 “대통령령이 정하는 것”이라 함은 건축물
내부의 천장이나 벽에 붙이는(설치하는) 것으로서 다음 각 호의 어느 하나에 해당하는
것을 말한다. 다만, 가구류(옷장, 찬장, 식탁, 식탁용 의자, 사무용 책상, 사무용 의자 및
계산대, 그 밖에 이와 비슷한 것을 말한다)와 너비 10센티미터 이하인 반자돌림대 등과
「건축법」 제52조에 따른 내부마감재료는 제외한다. <개정 2008.10.29>”
위와같이 실내장식물의 범위를 구분 지었습니다.
당 현장은 소방시설 설치유지 및 안전관리에관한법률 시행령 제19조에 의거하여
11층 이상으로 현장내 목재,합판등 실내장식물은 방염처리 대상입니다.
현장에 설치되는 목재 마감중에 방염처리 물품을 확인하고자 합니다.
법규상으로 가구류등은 방염처리 대상이 아닌걸로 명시되어 있는 항목 중,
본 현장의 구조는 목재(무늬목)마감 옆에 고정식 장식장이 설치되고, 또 목재(무늬목)
마감 옆에 빌트인 가구가 설치되는 형식으로 전체 벽체가 연결되면서 마감재질은
벽체와 가구가 같은 목재(무늬목)로 형성됩니다.
이러한 경우에 방염처리 대상물품을 정리하기에 어려운 점이 있어 도면과 함께
질의하오니 바쁘시더라도 답변 부탁드립니다.
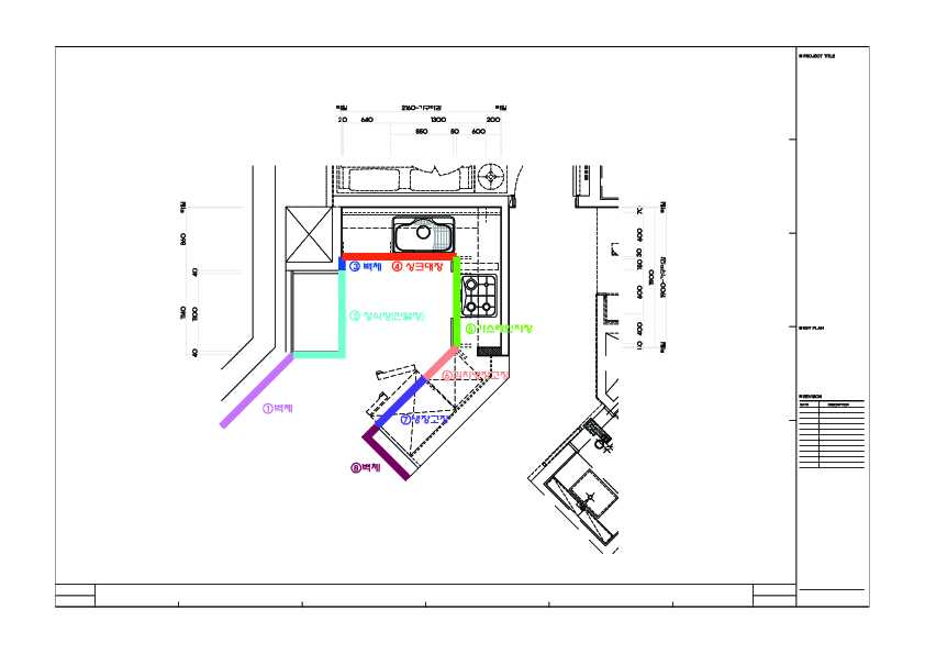
상황: ①벽체 ②장식장(진열장) ③벽체 ④주방가구(씽크대장) ⑤주방가구(가스레인지장)
⑥주방가구(김치냉장고덮개) ⑦주방가구(냉장고장) ⑧벽체
질의: ①번에서 ⑧번까지 전체가 연결되어있는 구조일 때 ①~⑧번 전체 방염처리로 하면
되나요? 아니면 ①~⑧번중 해당되는 방염대상물이 별도로 있는지요?
첨부파일
질의-.jpg
(다운로드 수: 325)
